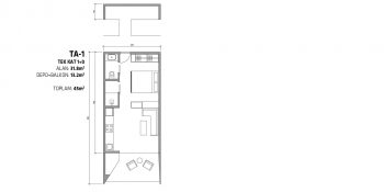
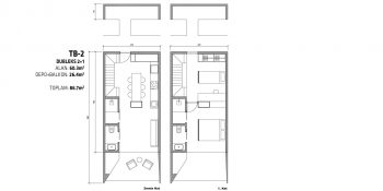
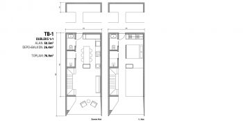
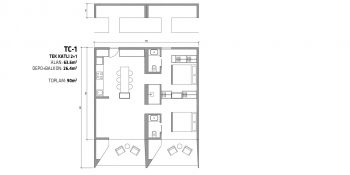
MICRO-SUMMER HOUSE
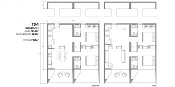
Micro Summer House is a low cost residential proposal located in Bodrum. Regarding the high demand for a summer house in Bodrum region, the proposed project offers an affordable weekend house typology strategy for an alternative investment development. While minimizing the sales price and operational cost, the project maximizes the common areas and facilities.
LOCATION BODRUM, MUĞLA, TURKEY
CLIENT NOVRON CONSTRUCTION
YEAR 2017
TYPE RESIDENTIAL
SIZE 4.500 m2

















